『ダイアモンドホール』座席と見え方!1階2階のおすすめ席と見切れ席を見分けるポイントも解説
名古屋ダイアモンドホールの座席配置やその見え方は、ライブやイベントを思いっきり楽しむ上で、とても大切ですよね。
このガイドでは、会場の座席数といった基本情報から、前方、中段、後方、そして端の席、それぞれのエリアで見え方がどう違うのかを、詳しく比較しながら解説していきます。

この記事を読めば、あなたに合った席がきっと見つかりますよ。
- 座席エリアごとの詳しい見え方と比較
- 見切れ席の具体的な位置と注意点
- 経験者が語るおすすめの良席
- 混雑状況や周辺のグルメ情報まで網羅
これから、名古屋ダイアモンドホールでの体験が最高のものになるように、一つ一つ丁寧にご紹介しますね♪
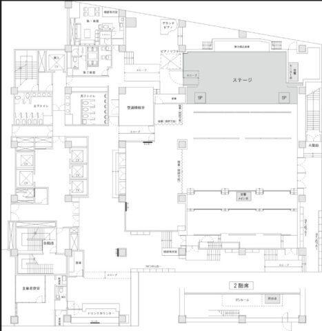
『名古屋ダイアモンドホール』の座席表と見え方詳細

名古屋ダイアモンドホールは、名古屋の中心地、中区新栄に位置していて、地下鉄東山線の新栄町駅から歩いてわずか3分ほどという、アクセス抜群のライブハウスです。
1992年にオープンして以来、たくさんの音楽ファンに愛されてきた歴史ある会場なんですよ。
気になるキャパシティですが、スタンディングの場合は最大で約1000人、椅子席の場合は約477席(1階席約436席、2階席約41席)となっています!
アーティストとの距離が近いのがこのホールの大きな魅力で、一体感のあるライブを体験するには最高の場所かもしれませんね。

会場は1階席と2階席に分かれていて、どちらのフロアにも椅子席が配置されています。
2014年の名称変更後、2015年に音響・照明設備が改修され、より良い環境でライブを楽しめるようになっているようです。
| 項目 | 詳細 |
| スタンディング収容人数 | 約1,000人 |
| 座席数 | 約477席(1階:約436席、2階:約41席) |
| フロア構成 | 1階(A~T列)、2階(U~X列) |
この表で、会場の基本的な規模感がつかめたのではないでしょうか。
続いては、各座席エリアからの見え方の違いを、もっと詳しく見ていきましょうね。
座席エリア別見え方比較表
30年近くダイヤモンドホール通ってて席あり公演って初めてなんだけど、自分のチケットに書かれた席番が座席例で存在していないなんてこと有る?www
— moriO'rourke (@morio_graver) October 8, 2024
あと、Zeppみたいなフロア真ん中の柵なんてあったっけ?記憶にないがいつ出来た?
行ってみてのお楽しみか…#Giris2 pic.twitter.com/nk1gWPWKSg
名古屋ダイアモンドホールは、前方、中段、後方、そして端の席で、それぞれ見える景色や体感する臨場感が大きく変わってきます。
どこで見るかによって、ライブの楽しみ方も変わってきますからね、自分に合った場所を見つけるのが大切ですよ♪
例えば、アーティストを間近に感じたいなら前方、全体の演出を楽しみたいなら後方、といった感じですね。

それぞれのエリアの特徴を、比較しやすいように表にまとめてみました。
| エリア | 見え方の良さ | アーティストの見やすさ | 臨場感 | 客層・混雑傾向 |
| 前方席 | ◎ | ◎(表情まで見える) | ◎(一体感がすごい) | 熱心なファンが多く、最も混雑しやすい。 |
| 中段席 | ◯ | ◯(全体が見やすい) | ◯(バランスが良い) | 比較的落ち着いており、幅広い層に人気。 |
| 後方席 | △ | △(段差からなら良好) | △(全体の雰囲気を楽しむ) | 自分のペースで楽しみたい人向け。比較的空いていることも。 |
| 端の席 | △ | △(角度によっては見切れる) | ◯(スピーカーが近いことも) | 視界は限られるが、意外な穴場になる可能性も。 |
この表を見ると、それぞれの席にメリットとデメリットがあるのがわかりますよね。
どの席が一番良い、というわけではなく、あなたがライブで何を一番大切にしたいかで、おすすめの席は変わってくるんです。
良席で定価以下のチケットが多数出品中!
ライブやスポーツ観戦、音楽フェスのチケット人気すぎて取れなかった!とショックを受けたことはありませんか?
先着チケットが秒で完売して取れなかった経験がある方も多いと思います。
※私も気に入った座席チケットが秒で完売して取れないこともありました…(泣)
そんな時は、チケットのリセール専門の「チケジャム」で探してみるのがおすすめです!
- 音楽フェスチケット
- お笑いのチケット
- スポーツ観戦チケット
- テーマパークの入場券
- 演劇・ミュージカルのチケット
- アーティストのコンサートチケット
ちなみに…
チケット購入した人が行けなくなった場合は、希望する人に定価か割安にして再販できるサービスを「リセール」って言いいます。
チケジャムは、高額で転売されるようなチケットじゃないから安心なのもおすすめポイントです♪
欲しい座席が割安で出品されてるかも!?気になる人はぜひチェックしてみることをおすすめします♪
\今なら10%還元でさらにお得に/
前方席(A~E列)からの見え方と特徴
前方席、特にA列からE列あたりは、何と言ってもステージまでの距離の近さが最大の魅力です。
アーティストの表情や流れる汗、指先の細かい動きまで、肉眼ではっきりと見ることができるのは、このエリアならではの特権ですよね。
大好きなアーティストが目の前にいるという臨場感と一体感は、一度味わうと忘れられないものになるでしょう✨✨

ただ、スタンディングのライブでは、この前方エリアが最も混雑する場所でもあります。
特に人気の公演では、開演が近づくにつれて人口密度がかなり高くなるので、自分のスペースを確保するのが少し大変かもしれません。
また、前の人との身長差によっては、ステージが見えにくくなってしまう可能性もあるので、その点は少し注意が必要です。
| 前方席のポイント | 詳細 |
| メリット | ・アーティストとの距離が非常に近い ・表情や細かいパフォーマンスまで見える ・ライブの一体感を最も感じられる |
| 注意点 | ・最も混雑しやすく、圧迫感があることも ・前の人との身長差で視界が遮られる可能性 ・スピーカーが近いため音が大きすぎると感じる場合も |
このエリアを狙うなら、開場時間より少し早めに到着して、心の準備をしておくと良いかもしれませんね。
中段席(F~M列)の見え方
中段席にあたるF列からM列あたりは、ステージ全体をバランス良く見渡せる、とても人気の高いエリアです。
前方席ほど近くはありませんが、その分、ステージの端から端まで視界に収めることができ、照明や映像といったライブ全体の演出を余すところなく楽しむことができます。
音響的にも、音がダイレクトに届く前方席とは少し違い、ミキシングされたバランスの良いサウンドを体感しやすいと言われています!

そして、このエリアの大きな特徴の一つが段差の存在です。
名古屋ダイアモンドホールは、L列とM列の間に段差が設けられているため、M列以降の席は前の人の頭が気になりにくく、視界が開けてとても見やすいですよ。
身長に自信がない方や、混雑を避けて快適にライブを楽しみたい方にとっては、この段差の上はまさに特等席かもしれません。
| 中段席の特徴 | 詳細 |
| 視界のバランス | ステージ全体とアーティストの姿をバランス良く見ることができる。 |
| 音響の良さ | 会場全体のサウンドをバランス良く楽しむことができる。 |
| 段差の存在 | L列とM列の間に段差があり、後方の視界が確保されやすい。 |
| 快適性 | 前方ほどの混雑はなく、比較的落ち着いて鑑賞できる。 |
アーティストの表情もしっかり見たいけど、ライブ全体の雰囲気も大切にしたい、という欲張りなあなたには、この中段席がぴったりかもしれませんね。
手数料0円キャンペーンで圧倒的にお得!
欲しいチケットを取れずに、悲しい気持ちやもどかしさを感じたことはありませんか?
そんな時は、チケットリセール専門のチケットサークルがおすすめ!
チケットサークルは、やむを得ない事情で行けなくなった場合に、そのチケットを他の希望者に定価か割安で合法的に再販できるリセールサービスなんですね。
しかも、売り手と買い手の間に運営会社が入るので安心・安全♪
偽チケットや詐欺リスクのない安全なチケット取引ができるんです!
さらに2025年12月31日までは手数料無料キャンペーンも実施中でお得に利用できます。
購入から受け取りまでネットで完結させたい人や安全に取引したい人、チケットリセール初心者の方にはとってもおすすめなアプリです✨
無料登録ですぐチケットを探すことができるので、チケットが手に入らない時は一度確認してみてくださいね。
\今だけ!手数料0円キャンペーン実施中!/
後方席(N~T列)の見え方と注意点
後方席であるN列からT列は、ステージからは少し距離がありますが、その分、会場全体の熱気や一体感を客観的に楽しめるという魅力があります。
ペンライトの光の海や、観客全員が一体となって盛り上がっている様子を眺めるのは、後方席ならではの感動的な光景ですよね✨✨
視界については、ステージ上のアーティストの細かい表情を見るのは少し難しいかもしれませんが、後方にも段差が設けられているため、前の人が気になって全く見えないということは少ないでしょう。
音響は、スピーカーから距離がある分、少し拡散されたように聞こえるかもしれませんが、かえってそれが耳に優しく、バランスの取れたサウンドとして心地よく感じられることもあります。

このエリアで楽しむコツは、双眼鏡を持参することです。
今日はこのメンバーの表情をじっくり見たいという時には、双眼鏡が強力な味方になってくれますよ。
| 後方席のメリット・デメリット | 詳細 |
| メリット | ・会場全体の一体感や演出を見渡せる ・スペースに余裕があり、自分のペースで楽しめる ・チケットが比較的取りやすい場合がある |
| デメリット | ・アーティストの表情など細かい部分は見えにくい ・前のエリアの盛り上がりが少し遠くに感じられることも |
ステージからの距離を気にしないのであれば、ライブ全体の雰囲気を満喫できる、とてもコストパフォーマンスの高い席だと言えるかもしれませんね。
見切れ席の位置と避けるポイント
どの会場にも言えることですが、名古屋ダイアモンドホールにも、残念ながら見切れ席と呼ばれる、ステージの一部が見えにくくなってしまう席が存在します。
見切れ席になりやすいのは、主にステージの真横に近い、左右の端のエリアです。
これらの席は、角度的にステージの奥や、反対側の端で行われているパフォーマンスが見えなくなってしまう可能性があるんですね!

また、2階席X列の一部座席は、照明機器の設置位置により視界が遮られる可能性があります。
チケットを購入する際には、注釈付き指定席や一部見えづらいお席ですといった注意書きがないか、よく確認することが大切です。
もし、そういった記載がなくても、座席番号が極端に端の番号だった場合は、少し見切れる可能性を覚悟しておいた方が良いかもしれません。
| 見切れ席の位置(例) | なぜ見切れるのか |
| 1階席の左右両端 | ステージに対する角度が深いため、反対側の端が見えない。 |
| 2階席X列の一部 | 照明機器の設置位置により視界が遮られる可能性がある。 |
| 機材や柱の周辺 | 物理的に視界が遮られてしまう。 |
もし見切れ席になってしまっても、がっかりしすぎないでくださいね。
その席ならではの楽しみ方を見つけるのも、ライブの醍醐味の一つかもしれませんよ。
おすすめの良席はここ!
ここまで各エリアの特徴を見てきましたが、結局のところどこが一番おすすめなの?という点が気になりますよね。
もし私が名古屋ダイアモンドホールで席を選ぶなら、総合的に考えてM列以降の段差があるエリアの、中央ブロックを狙います。
このエリアは、L列とM列の間にある段差のおかげで前方の視界がとてもクリアで、ステージ全体をストレスなく見渡すことができるんです✨✨

ステージからの距離も絶妙で、アーティストのパフォーマンスと会場全体の演出の両方を、バランス良く楽しむことができる最高のポジションだと思います。
スタンディングのライブであれば、この段差の前、つまり柵の近くは特に人気が高いスポットですよ。
あなたのライブのスタイルに合わせて、最高の席を見つけてくださいね。
| おすすめ席ランキング | 特徴 |
| 1位:M列以降の中央 | 段差で視界良好。ステージ全体と音響のバランスが最高。 |
| 2位:スタンディングの段差前 | 視界が開け、かつ前方の一体感も感じられる穴場。 |
| 3位:前方席の中央 | アーティストとの一体感を最優先するならここ一択。 |
このランキングはあくまで私個人の意見ですが、席選びの参考にしていただけると嬉しいです。
安い・便利・予約OK!駐車場探しはアキッパで完結
「イベントのたびに、駐車場がどこも満車…」
そんな経験、ありませんか?
ようやく見つけても高かったり、出庫の渋滞でイライラしたりすると、せっかくのお出かけも、台無しになりますよね。。。
そんな悩みをまるごと解決してくれるのが『アキッパ』。
スマホから簡単に駐車場を予約でき、時間内の入出庫も自由。
おまけに、安くて便利な立地の駐車場が、すぐに見つかります。
特にコンサートや花火大会の開催時には、予約開始直後に満車になるほどの人気ぶり!
テレビや新聞でも多数紹介されている、今注目の駐車場予約サービスです。
初めて行く場所でも、もう駐車場探しで困ることはありません!
\駐車場は早い者勝ち!/
『名古屋ダイアモンドホール』利用時に気になるポイント
チケットを手に入れて、座席のことも分かってきたら、次に気になるのは会場での過ごし方や周辺の環境ですよね。
ライブを最初から最後まで快適に楽しむためには、混雑の状況や食事の場所、アクセス方法などを事前に知っておくと、心に余裕が生まれます。

ここからは、名古屋ダイアモンドホールを訪れる際に、きっと役立つであろうポイントをいくつかご紹介していきますね♪
混雑状況・開場前の並び方の実情
ダイヤモンドホール名物(?)天国への階段が寄る年波に勝てずもう辛くて、、、😭階段待機列といえば仙台Rensaもキツイっすけど(チケット忘れて1階待機→エレベーターで入場だったけど)ダイホは居場所無いのがなあ~😢しかし、ここを超えれば、、、!会場入れば、、、!そこにはLIVEが、、、!💪 pic.twitter.com/Zcm3ZxoHm5
— ΕΝΖΟ (@esnhzaope) November 11, 2018
人気の公演ともなると、会場周辺は開場前からたくさんのファンで賑わいます。
特に混雑のピークは、開場時間の30分前から開演時間直前にかけて。
グッズの先行販売がある場合は、さらに早い時間から人が集まり始めるようです。

名古屋ダイアモンドホールでの入場待機は、多くの場合、ビル入口の脇にある屋外階段で行われます。
そのため、夏は暑く、冬は寒いので、季節に合わせた服装や対策をしていくことを強くおすすめしますね。
スタンディングの公演では、チケットに記載されている整理番号の順に入場することになります!
開場時間になるとスタッフの方が番号を呼び始めるので、自分の番号が呼ばれるまでに、指定された待機場所へ移動しておくようにしましょう。
| 時間帯 | 混雑の目安 |
| グッズ先行販売時 | 販売開始前から長蛇の列ができることも。 |
| 開場30分前~ | 最も混雑する時間帯。入場待機列が長くなる。 |
| 開演直前 | 駆け込みで入場する人で入口付近が混雑する。 |
時間に余裕を持って行動することが、ライブをリラックスして楽しむための最大のコツかもしれませんね。
周辺グルメ・カフェ情報
今日のモーニング兼用ランチ
— ㌰㌰どらちゃん㌐㌧ (@Capital_DDD_DCT) August 15, 2025
新栄にある
【CENTRE】さん
ダイヤモンドホール横にあるカフェで
名物の白玉サンドを食べに✨
めっちゃ柔らかくて美味かった🤤#カフェ#カフェ巡り#名古屋カフェ#名古屋 pic.twitter.com/a1DypSs6TZ
ライブの前後に、お腹を満したり、友達と感想を語り合ったりする時間も、イベントの楽しみの一つですよね。
名古屋ダイアモンドホールがある新栄町エリアは、名古屋の中心地・栄からも近く、飲食店がとても充実しているんです。
会場のすぐ近くには、気軽に立ち寄れるカフェやラーメン店、居酒屋などがたくさんあります。

もしライブ後に行きたいお店が決まっているなら、事前に予約をしておくと安心ですよ✨✨
また、開演までのちょっとした時間つぶしには、会場近くのカフェやコンビニが便利です。
| 店舗ジャンル | おすすめポイント |
| カフェ | 開演前の待ち合わせや、一息つきたい時に便利。 |
| ラーメン・B級グルメ | 手軽に、そしてしっかりお腹を満たしたい時にぴったり。 |
| 居酒屋 | ライブの興奮をそのままに、仲間と乾杯するのに最適。 |
| コンビニ | 飲み物や軽食の調達、ATMの利用などに重宝する。 |
せっかく名古屋に来たのなら、ひつまぶしや味噌カツといった名古屋めしのお店を探してみるのも楽しいかもしれませんね。
バリアフリー対応・車椅子席の詳細
昨日は今年のライブ納めでPassCodeでした!
— ヒコ (@c_plain_y) December 14, 2019
公式にアップされる写真で初めて入った!!車椅子席って一番後ろが多いからほとんど入らないこと多いけどダイヤモンドホールはすごく見やすい位置でお気に入り^ ^
最高にエモい夜でした! pic.twitter.com/1lT4sTvI9o
誰もが安心してライブを楽しめるように、名古屋ダイアモンドホールではバリアフリーへの配慮もされています。
車椅子を利用されている方のために、専用の観覧スペースが設けられているようです。

このスペースは、公演内容や当日の状況によって場所が変わることがあるそうなので、チケットを購入した後、事前にホールへ問い合わせておくことをお勧めします。
会場である雲竜フレックスビルのエレベーターで5階のホールまで上がることができ、ホール内にもスロープが設置されているので、車椅子での移動もスムーズに行えるようになっているようです。
何か困ったことや手伝ってほしいことがあれば、会場のスタッフの方が親切に対応してくださるので、遠慮なく声をかけてみてくださいね♪
| 設備 | 対応状況 |
| 車椅子観覧スペース | あり(要事前確認) |
| スロープ | 会場内に設置あり |
| 車椅子対応トイレ | あり(スタッフへの声がけが必要) |
| エレベーター | ビル内にあり、5階ホールまでアクセス可能 |
事前に情報を集めて準備をしておくことで、当日はより安心してイベントに集中できるはずです。
アクセスの詳細と注意点
新栄駅の2番出口降りたらどデカい帆華ちゃんの20歳BIRTHDAY朝アイスがあってびっくり!!誕生日おめでとう🎉
— ☆ももあり☆ (@momoari3) November 15, 2017
11/22新栄駅ダイヤモンドホールでの秋本帆華生誕イベント中も掲載してるみたい!#秋本帆華生誕祭 pic.twitter.com/V0Nn8YDG3N
名古屋ダイアモンドホールへのアクセスは、公共交通機関を利用するのが最も便利です。
最寄り駅は、名古屋市営地下鉄東山線の新栄町駅で、2番出口から歩いて約3分という近さ!
名古屋駅からは地下鉄東山線に乗って3駅、約7分で到着するので、遠方から新幹線で来られる方にとっても、非常に分かりやすくアクセスしやすい立地と言えるでしょう。

車で行く場合は、周辺にはコインパーキングがいくつかありますが、イベント当日はどこも混雑が予想されるため、駐車場所を探すのに時間がかかってしまう可能性も考えられます。
特別な事情がない限りは、時間に正確でスムーズに移動できる地下鉄を利用するのが、最も確実でストレスのない方法だと思いますよ。
| 交通手段 | 詳細・注意点 |
| 電車(推奨) | 地下鉄東山線「新栄町駅」2番出口から徒歩約3分。 |
| 車 | 周辺コインパーキングを利用。イベント時は混雑・渋滞に注意。 |
| バス | 「新栄町」バス停から徒歩約2分。 |
時間に余裕を持って家を出て、少し早めに会場周辺に到着し、近くのカフェで開演を待つ、というのが理想的なプランかもしれませんね。

オペラグラスは表情がくっきり大きく見えるものを選ぶのがおすすめ!
手ブレ軽減のアイカップがついてるのも便利です♪
まとめ
ダイヤモンドホール座席有りで行くの初めてだなぁ☺️
— ☆マキ☆ (@kimamanamaki) February 18, 2022
スタンディングばっかだったから今回のゲテモノ名古屋どんな風に見れるんだろうなぁ☺️
はぁ❤️楽しみすぎる😍#鬼龍院翔#JESTIVAL#アノコロイド#ゲテモノ名古屋 pic.twitter.com/QGJPh2aXUB
名古屋ダイアモンドホールの座席からの見え方や、会場を快適に楽しむための様々な情報をご紹介してきましたが、いかがでしたでしょうか。
この記事でご紹介した大切なポイントを、最後にもう一度おさらいしてみましょう。
名古屋ダイアモンドホールは、アーティストとの距離が近く、一体感を存分に味わえる素晴らしいライブハウスです。

座席のエリアごとに見え方や楽しみ方が全く違うので、あなたの目的に合った最高の場所を見つけてくださいね✨✨
- 会場の規模と特徴
- スタンディングで約1000人、座席で約477人収容可能な、名古屋を代表するライブハウスです。
- 座席からの見え方
- 前方席は臨場感、中段席はバランス、後方席は全体感を楽しむのに適しています。
- L列とM列の間にある段差の上は見晴らしが良く、特におすすめのエリアですよ。
- 注意点とポイント
- 見切れ席の可能性も考慮し、チケット購入時は座席情報をよく確認しましょう。
- 人気公演は開場前から混雑するので、時間に余裕を持った行動が大切です。
- アクセスと周辺環境
- 地下鉄東山線「新栄町駅」から徒歩約3分とアクセスは抜群です。
- 周辺には飲食店も多く、ライブの前後も楽しむことができます。
この記事が、あなたの名古屋ダイアモンドホールでのライブ体験を、より一層豊かで思い出深いものにするための一助となれば、私にとってこれ以上嬉しいことはありません。




