『ゴリラホール』座席と見え方!おすすめ良席や見切れ席も徹底解説します!
2023年に大阪の住之江区にオープンした「GORILLA HALL OSAKA(ゴリラホール大阪)」は、「最高の遊び場」をコンセプトに掲げた、今まさに注目を集めている新感覚のライブハウスですよね。
オールスタンディングでの最大収容人数は約1,130名から1,300名の範囲内とされており、公演によって少し幅があるみたいです。
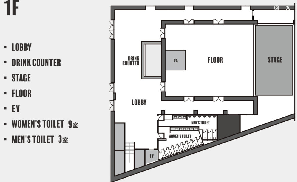
また、会場は1階と2階のフロアに分かれています。

特に2階席はステージをコの字型にぐるっと囲むような珍しい設計になっていて、どの場所からでもアーティストを間近に感じられる工夫がされているんですよ✨✨
今回はゴリラホールの各座席からのステージの見え方をできるだけ詳しく解説します。

ライブ参加者が特に注目するポイントに焦点を当てました。
- ゴリラホールの座席ごとの詳しい見え方
- 見切れ席はどこにあるのか
- 一番おすすめの良席はどのエリアなのか
- 会場の混雑状況や周辺のグルメ情報
- バリアフリーへの対応やアクセス方法
これらについて、実際の体験談や口コミもたくさん交えながら、リアルな情報をお届けします。
座席選びで迷っている方も、この記事を読めばきっと満足度の高いライブ体験ができるはずです。

少しだけユーモアも交えながら、楽しくご紹介していきますので、ぜひ最後までお付き合いください。
ゴリラホールの座席表と見え方!


ゴリラホールは、基本的にオールスタンディングでの利用が多く、公演によっては椅子が設置されることもある、可変的な座席構造を持っています。
まず全体の大きな特徴として、ステージの高さが約120cmと、一般的なライブハウスに比べてかなり高めに設計されている点が挙げられます。
これって、後方のエリアからでも前の人の頭が気になりにくく、ステージ全体をしっかりと見渡せるようにという、すごく嬉しい配慮なんですよね。

ちなみに1階の客席面積は約255㎡で、ステージの床面積243.6㎡とほぼ同じくらいの広さがあるんですよ♪
そして何よりユニークなのが、2階フロアです。
約248名を収容できるこのフロアは、ステージをコの字型、つまり三方向から囲むようなバルコニー状になっています。
これがまたアーティストとの距離をぐっと縮めてくれるんです。

中には2階もオールスタンディングで利用できる公演もあって、他のライブハウスではなかなか味わえない、独特の一体感と臨場感を楽しむことができますよ。
座席エリア比較表
ジュネのソロ
— 나미 (@JUNE_143_Naaa) November 29, 2024
チケット発券してきた☺️
楽しみ🎶
ゴリラホールのキャパは
スタンディングで1300人だけど
何人ぐらいいるんやろ🤔
私はサブスク先行で整理番号
2桁と100番台と200番台もあった!
座席↓↓↓こんな感じなんかな?🤔 pic.twitter.com/yW1iCyojZX
ゴリラホールの各エリアからの見え方を、分かりやすく表にまとめてみました!
| エリア | 見え方の良さ | 距離感 | 視界の広さ | 注意点 |
| 前方(1階前列) | ★★★★★ | ★★★★★ | ★★☆☆☆ | 演者を見上げる形になるため、首が少し疲れる可能性も。音圧をダイレクトに感じられます。 |
| 中段(1階中盤) | ★★★★☆ | ★★★☆☆ | ★★★★☆ | ステージ全体と演者の表情のバランスが最も良いエリア。前の人の身長によっては視界が少し遮られることも。 |
| 後方(1階後ろ) | ★★★☆☆ | ★★☆☆☆ | ★★★★★ | 会場全体を見渡せる開放感がある。演者の細かい表情を見るには双眼鏡があると安心。 |
| 端席(2階コの字型) | ★★★★☆ | ★★★★☆ | ★★★☆☆ | ステージを上から見下ろす形で新鮮な視点。角度によっては一部見切れる可能性や、手すりが視界に入ることがあります。 |
この表はあくまで一般的な目安ですが、それぞれの席に違った魅力があるのが伝わりますでしょうか。

口コミを見ても、「やっぱり最前列の迫力は最高!」「2階席から全体を見るのが好き」といったように、ファンの間でも好みが分かれるみたいですね。
良席で定価以下のチケットが多数出品中!
ライブやスポーツ観戦、音楽フェスのチケット人気すぎて取れなかった!とショックを受けたことはありませんか?
先着チケットが秒で完売して取れなかった経験がある方も多いと思います。
※私も気に入った座席チケットが秒で完売して取れないこともありました…(泣)
そんな時は、チケットのリセール専門の「チケジャム」で探してみるのがおすすめです!
- 音楽フェスチケット
- お笑いのチケット
- スポーツ観戦チケット
- テーマパークの入場券
- 演劇・ミュージカルのチケット
- アーティストのコンサートチケット
ちなみに…
チケット購入した人が行けなくなった場合は、希望する人に定価か割安にして再販できるサービスを「リセール」って言いいます。
チケジャムは、高額で転売されるようなチケットじゃないから安心なのもおすすめポイントです♪
欲しい座席が割安で出品されてるかも!?気になる人はぜひチェックしてみることをおすすめします♪
\今なら10%還元でさらにお得に/
前方席(1階前列)の見え方は?
ライブハウスの華といえば、やはりこの前方席、1階の前列エリアですよね。
手を伸ばせば届いてしまいそうなほどの距離で、大好きなアーティストのパフォーマンスを体感できるのは、このエリアだけの特権です。
| 特徴 | 詳細 |
| メリット | ・アーティストの表情や汗まで見えるほどの近さ ・スピーカーからの音を全身で浴びるような大迫力 ・会場の熱気を最もダイレクトに感じられる一体感 |
| デメリット | ・人気エリアのため、非常に混雑しやすくパーソナルスペースは狭い ・ステージを見上げる形になるため、長時間の公演では首が疲れることも ・視界がステージ中央に集中しがちで、全体の演出は見渡しにくい |
「ステージ上のメンバーの細かい表情までしっかり見えて、最高でした!」という声や、「音の迫力がすごくて、まさに音楽の中にいるみたいだった」といった体験談が本当に多いです✨✨

ただし、その分もみくちゃにされることも覚悟しないといけないかもしれませんね。
自分のペースで楽しみたいというよりは、とにかく熱気を感じたい!という方にはたまらない場所と言えるでしょう。
中段席(1階中盤)の見え方は?
ゴリラホール 2階広いし、1階で観てもステージ高いし かなり良い箱。アクセスは良いような悪いようなやけど、これからはココでのイベントが増えたらええなぁ pic.twitter.com/GsBgQhLK9T
— 子ヤギです。 (@yagidesu81) November 5, 2023
ステージからの近さも欲しいけれど、ライブ全体の雰囲気も楽しみたい、という方にぴったりなのがこの中段席、1階の中盤エリアです。
前方エリアのすぐ後ろで、ステージ全体を見渡すのにちょうど良い距離感なんですよ♪
| 特徴 | 詳細 |
| メリット | ・ステージ全体が見渡しやすく、照明などの演出も楽しめる ・音響のバランスが良く、クリアなサウンドを聴きやすい ・前方席ほどの極端な混雑は避けられることが多い |
| デメリット | ・自分の前に背の高い人が来ると、視界が遮られてしまう可能性がある ・前のエリアの盛り上がりによっては、少し見えにくさを感じる場面も |

このエリアは、アーティストのパフォーマンスと会場全体の演出をバランス良く楽しめるのが最大の魅力ですね。
口コミでも「ステージもフロアの盛り上がりも両方見えて、一番ライブを楽しめる場所かも」なんて声も見かけます。
程よい距離感を保ちながら、ライブの世界にどっぷりと浸ることができる、まさにゴールデンエリアかもしれません。
手数料0円キャンペーンで圧倒的にお得!
欲しいチケットを取れずに、悲しい気持ちやもどかしさを感じたことはありませんか?
そんな時は、チケットリセール専門のチケットサークルがおすすめ!
チケットサークルは、やむを得ない事情で行けなくなった場合に、そのチケットを他の希望者に定価か割安で合法的に再販できるリセールサービスなんですね。
しかも、売り手と買い手の間に運営会社が入るので安心・安全♪
偽チケットや詐欺リスクのない安全なチケット取引ができるんです!
さらに2025年12月31日までは手数料無料キャンペーンも実施中でお得に利用できます。
購入から受け取りまでネットで完結させたい人や安全に取引したい人、チケットリセール初心者の方にはとってもおすすめなアプリです✨
無料登録ですぐチケットを探すことができるので、チケットが手に入らない時は一度確認してみてくださいね。
\今だけ!手数料0円キャンペーン実施中!/
後方席(1階後ろ)の見え方は?
ゴリラホール2階
— す〜【おじさん】ばちどん隊員 (@kakuresato844) September 30, 2023
後ろにひな壇あり
とても観やすいですね
1階後方より良い感じ
2階スタンディング96番最終で入っても大丈夫
撮可タイム中 pic.twitter.com/of4n5oaA2y
激しい混雑は避けて、自分のペースでゆったりとライブを楽しみたいという方には、後方席、つまり1階の後ろのエリアがおすすめです。
ゴリラホールはステージが高いので、後方からでも意外と見やすいと評判なんですよ。
| 特徴 | 詳細 |
| メリット | ・会場全体の雰囲気や一体感を客観的に楽しめる ・パーソナルスペースを確保しやすく、自由に身体を揺らせる ・ドリンクカウンターやロッカー、トイレへの移動がしやすい |
| デメリット | ・アーティストの表情など細かい部分は肉眼では見えにくい ・前方エリアに比べて、音の迫力は少しマイルドになる |
後方席の魅力は、何と言ってもその開放感と自由度の高さです。
「ゆったりと音楽に集中したい派なので、後方席はすごく快適でした」という口コミも多く、落ち着いてライブを鑑賞したい方には最適な場所と言えます。

もし演者さんの表情までしっかり見たい場合は、倍率8倍から10倍程度の双眼鏡を持っていくと、より一層楽しめるかもしれませんね✨✨
見切れ席はどこ?
ENTHとMONOEYESは初めての対バンらしい。ゴリラホールの良さは1階と2階の行き来が自由なところ。1階フロアは柵なし。前で頑張るのも後ろでゆったりするのもあり。クリームソーダ飲みながら見るのも可能。 pic.twitter.com/eQpSUGUL9U
— かずくん (@kazuaki016) July 11, 2025
「どの席からも見やすい」と評判のゴリラホールですが、構造上どうしても少し見えにくい、いわゆる「見切れ席」になってしまう可能性のある場所も存在します。
特に注意したいのが、2階席の一部です!
| 見切れの可能性があるエリア | 詳細と注意点 |
| 2階席の最も端の席 | ステージを真横から見る形に近くなるため、ステージの奥側やスクリーンの一部が見切れてしまう可能性があります。 |
| 2階席の一部 | 一部の席では、当日の機材配置や会場の構造によって、ステージや演出の一部が見えにくくなる可能性があります。 |
| 会場内の柱の周辺 | ゴリラホールは柱が少なく視界を遮るものはほとんどありませんが、PA卓(音響ブース)周りの後方席は、機材で一部視界が遮られることがあります。 |
実際にライブに参加した方からは、「2階の端っこだったけど、演者さんがサイドまで来てくれたからむしろラッキーだった!」という声もあれば、「角度的にドラムセットが全く見えなかった」という声も聞かれます。

こればっかりは、当日のステージセットや演出によって大きく変わってくるところですよね。
もしチケットに「注釈付き指定席」などの記載があった場合は、こういった見切れの可能性がある席だと考えておくと良いでしょう。
もっともおすすめな席はどこ?
ゴリラホール2階でもめっちゃ見やすいし近い〜!!! pic.twitter.com/oDBkvzRrGR
— さえちるちゃん (@saechiru_3) January 21, 2023
結局のところ、一番おすすめの席はどこなの?と気になりますよね。
これはもう、ライブをどう楽しみたいかという目的によって変わってくるのですが、ここでは代表的な2つの「神席」候補を比較してみたいと思います。
| おすすめ席 | 魅力と特徴 | こんな人におすすめ! |
| 1階前方・センターブロック | ・アーティストの息遣いまで感じられる臨場感 ・音圧を全身で浴びるような大迫力 ・会場全体の熱気を肌で感じられる一体感 | ・ライブは一体感と熱気が命! ・とにかくアーティストを間近で見たい! ・体力には自信がある! |
| 2階コの字型・最前列中央 | ・ステージ全体を上から見渡せる最高の視界 ・アーティストの動きも照明演出も全て楽しめる ・混雑を避け、自分のスペースで快適に鑑賞できる | ・ライブ全体の演出をしっかり見たい! ・混雑を避けて快適に鑑賞したい! ・他の人とは違う視点でライブを楽しみたい! |
ファンの間でも人気が高いのは、やはりこの2つのエリアです。

1階前方の一体感も捨てがたいですし、2階最前列からゆったりと全体を見渡す優越感もたまりません✨✨
どちらの席になったとしても、ゴリラホールならではの素晴らしい体験ができることは間違いないでしょう。
安い・便利・予約OK!駐車場探しはアキッパで完結
「イベントのたびに、駐車場がどこも満車…」
そんな経験、ありませんか?
ようやく見つけても高かったり、出庫の渋滞でイライラしたりすると、せっかくのお出かけも、台無しになりますよね。。。
そんな悩みをまるごと解決してくれるのが『アキッパ』。
スマホから簡単に駐車場を予約でき、時間内の入出庫も自由。
おまけに、安くて便利な立地の駐車場が、すぐに見つかります。
特にコンサートや花火大会の開催時には、予約開始直後に満車になるほどの人気ぶり!
テレビや新聞でも多数紹介されている、今注目の駐車場予約サービスです。
初めて行く場所でも、もう駐車場探しで困ることはありません!
\駐車場は早い者勝ち!/
ゴリラホールの利用時に気になるポイント・注意事項は?
今日はAMEFURASSIのライブ!
— トホホ🦋 (@tohoho1226) October 11, 2025
初めてライブ見るから楽しみー😉✨
ゴリラ🦍ホールも初めまして!😝 pic.twitter.com/wI7u1YyC7c
初めて行くライブハウスって、会場内のことだけでなく、開場前の待ち時間や周辺の環境も気になったりしませんか。
ここでは、ゴリラホールをさらに快適に楽しむための、実用的な情報をいくつかご紹介します。
混雑の状況や、ライブ前後に立ち寄れるおすすめのお店、さらにはバリアフリーへの対応まで、事前に知っておくと安心できるポイントをまとめました。
こうした情報の有無が当日の快適さに大きく影響します!

アクセス方法についても詳しく解説しますので、方向音痴だという方も心配いりませんよ。
ゴリラホールの混雑状況や開場前の並び方は?
ゴリラホールの待機列えぐ、、、 pic.twitter.com/SWwYf1jZ0B
— 毒舌ゆーりそ🐰 (@otani_kouji) April 29, 2024
ライブ当日は、多くの人が同じ時間帯に会場に集まるため、どうしても混雑は避けられません。
特にオールスタンディングの公演では、入場時の整理番号がとても重要になってきます。
| ポイント | 詳細と対策 |
| 開場前の待機場所 | 会場周辺の指定されたエリアで待機することが多いです。スタッフの指示に従って、整理番号順に整列します。 |
| ピーク混雑時間 | 開場時間の30分前から開演時間直後までが最も混雑します。早めに到着しすぎても待つ場所がない場合もあるので、開場時間の少し前に着くのがおすすめです。 |
| 入場時の流れ | 整理番号が呼び出されたら、チケットとドリンク代(通常600円)を準備して入場ゲートへ。入場後はまずロッカーに荷物を預け、フロアに向かうのがスムーズです。 |
| 入場待ちのコツ | 夏は暑さ対策、冬は寒さ対策を忘れずに。また、周辺は住宅街でもあるため、大きな声での会話は控えるなど、マナーを守って待つことが大切ですね。 |

整理番号が若い方は、良い場所を確保するために早めに入場したいところですが、呼ばれた際にその場にいないと後ろに回されてしまうので注意が必要です。
逆に、後ろの方でゆったり見たいという方は、開演時間ギリギリに入場するというのも一つの手かもしれません♪
ゴリラホール周辺のおすすめグルメ・カフェは?
大阪ゴリラホールをチェックした後は、住之江で有名な洋食店ニューとん助でランチです🍴独身ぶりです✨変わらずのボリュームで、ジュンジならペロリと食べるんだろうなあと思いました💞#OnlyOneOf #オンリーワンオブ #온리원오브#Junji #ジュンジ #준지 pic.twitter.com/Io7r4ypiSs
— Bob.kj (@Bobkj828187) March 3, 2024
ライブの前後に、ちょっとお腹を満たしたり、友達と感想を語り合ったりする場所があると嬉しいですよね。
ゴリラホールの周辺は、残念ながら飲食店が多いエリアではありませんが、少し足を延せば魅力的なお店がいくつかありますよ。
| 店名 | ジャンル | 特徴・おすすめポイント |
| ニューとん助 | とんかつ・定食 | 会場から徒歩圏内にある、地元で人気の定食屋さんです。ボリューム満点で、ライブ前の腹ごしらえにぴったり。 |
| サイゼリヤ 北加賀屋店 | イタリアンレストラン | ファミリーレストランなので、開演までゆっくりと時間を潰したい時に便利です。ドリンクバーがあるのも嬉しいポイント。 |
| 南港ポートタウン | ショッピングモール | 少し距離はありますが、電車で一駅移動すればフードコートやカフェなど、お店の選択肢がぐっと広がります。 |
ライブの当日は、周辺のお店も混雑することが予想されます。

「ライブハウス帰りの定番スポットだよね!」とファンが集まるお店もあるみたいなので、時間に余裕を持って行動するのが良さそうですね✨✨
ゴリラホールのバリアフリー・車椅子席・サポート体制は?
ゴリラホールに来ています
— SAW-1-2-3 (@saw_tt) March 18, 2023
前に来た時は気づかなかったがエレベーターある
優しい pic.twitter.com/dG5S2ah0iy
ゴリラホールは、誰もが安心してライブを楽しめるように、バリアフリーにもかなり配慮されています!
車椅子を利用される方や、お手伝いが必要な方も、事前に問い合わせておくことでスムーズに鑑賞することができますよ。
| 設備・サポート | 詳細情報 |
| 車椅子用スペース | 会場内に専用の観覧スペースが設けられています。通常は1階の後方、PA卓の横あたりになることが多いようです。 |
| 2階席へのエレベーター | 2階席へはエレベーターが設置されており、多くの方が段差なく利用可能です。 |
| 多目的トイレ | バリアフリー対応のトイレが設置されています。 |
| 利用方法 | 事前にゴリラホールの公式サイトや、公演の主催者に問い合わせて、車椅子での来場を伝えておく必要があります。 |
| スタッフの対応 | 当日はスタッフの方が専用スペースまで案内してくれます。親切に対応してくれたという口コミも多いので、安心して相談してみてください。 |

ライブを諦めていたという方も、こういったサポート体制が整っていると知ると、参加へのハードルがぐっと下がりますよね。
音楽を愛する全ての人が楽しめる場所であってほしい、という会場の想いが伝わってきます。
ゴリラホールのアクセス方法は?
ゴリラホールは四つ橋線の住之江公園駅から2番出口出てまっすぐ歩いて3枚目の建物で右に曲がると着く。
— ME⚡️KZ(マエカズ) (@floyd_skullring) December 25, 2022
徒歩8~10分ほど。途中に買い物できるとこあるけど、道反対に渡るのがダルいので、買っておくこと推奨。
今回はクロークあり。
ロッカーなし。
#GorillaHall #ライブハウス pic.twitter.com/srWsd1k16I
ゴリラホールへのアクセスは、いくつかの方法がありますが、最も一般的なのは電車を利用する方法です。
最寄り駅からのルートや、車でのアクセスについてまとめました。
| 交通手段 | ルート・所要時間・注意点 |
| 電車(最寄り駅) | 大阪メトロ四つ橋線「住之江公園駅」から徒歩約8分。 |
| バス | 大阪シティバスを利用する方法もありますが、電車のほうが分かりやすく便利です。 |
| 車・駐車場 | 会場に専用駐車場はありません。周辺のコインパーキングを利用することになりますが、駐車券の優待サービスなどは一切ないと公式に明記されています。 |
| 注意点 | 終演後は駅が非常に混雑します。ICカードへのチャージは事前に済ませておくか、少し時間をずらして帰宅するのがおすすめです。 |
特に、遠方から来られる方は、乗り換え案内アプリなどで事前にルートを確認しておくと、当日慌てずに済みますね♪

駅から会場までの道すがら、だんだんとライブへの期待感が高まっていくのも、また楽しみの一つかもしれません。

オペラグラスは表情がくっきり大きく見えるものを選ぶのがおすすめ!
手ブレ軽減のアイカップがついてるのも便利です♪
まとめ
大阪の住之江に出来たライブハウス、ゴリラホール初めて来たけど、ビックキャットくらあのキャパですごく良かった。2階席もbarとフリースペースで過ごしやすい次は2階でみよ。
— やせっち (@ys_tmhrbass) April 14, 2024
横もボートレースなのでお金無限湧き pic.twitter.com/EFPwer4uj1
今回は、大阪の新しいライブハウス「ゴリラホール」の座席からの見え方について、様々な角度から詳しくご紹介しましたが、いかがでしたでしょうか。
「最高の遊び場」というコンセプト通り、ステージと客席の距離が近く、ライブの熱量をダイレクトに感じられる、本当に魅力的な会場だということがお分かりいただけたかと思います。
どのエリアにもそれぞれの良さがあり、一概に「ここが一番!」と決められないのが、ゴリラホールの奥深いところかもしれませんね。
- ゴリラホールは1階も2階もステージに近く、ライブの一体感を存分に味わえる構造になっている。
- ステージが高めに設計されているため、後方からでも比較的見やすいのが嬉しいポイント。
- 前方席の迫力、中段席のバランス、後方席の開放感、そして2階席の特別感と、エリアごとに全く違う楽しみ方ができる。
- 見切れ席の可能性はゼロではないが、特に2階の端の席はステージセットによって見え方が変わるので注意が必要。
- 混雑状況やアクセス方法などを事前にしっかりチェックして、当日はスマートにライブを楽しみましょう。

この記事が、あなたの座席選びの参考になり、ゴリラホールでの一日が最高の思い出になるお手伝いができたなら、私にとってそれ以上に嬉しいことはありません✨✨
ぜひ、ユニークな構造と居心地の良さが魅力のゴリラホールで、心ゆくまで音楽を楽しんできてくださいね。




